
mall | 环境
Standing in the open gallery at the entrance of JUNG Shanghai showroom, daylight filters down through a roof opening. A glance toward the surrounding mall reveals similar roofs, apertures, and shafts of light not far away. Almost imperceptibly, the passage of time carried by natural light aligns with the pace of movement within the space, establishing a subtle connection.
站在永诺上海展厅入口的开放区,“日光”从屋顶一处洞口照射下来,这时候如果留意一下室外的商场环境,会意识到不远处也有相似的顶、洞口、日光,不知不觉中自然光带来时间流动的感受与展厅室内的行进节奏相互匹配,完成了一次微妙的连接。

general view丨概貌

entrance | 入口
Between exterior and interior, space and people, architecture is approached through a relational perspective. It is no longer perceived as a purely physical object, but as a medium of communication and imbued with a sense of spirit. What begins as an intuition-led approach to shaping space gradually develops into a more defined architectural practice, articulated through clear paths and precise expressions. The work consistently explores the presentation and use of space through the lens of “purity” and “repetition.”
外与内、空间与人之间,用关注于关系的独特视角进行观察,建筑不再是单纯的物质性存在,而具备可交流和沟通的精神性内容。从由直觉引导的空间构建,渐渐形成路径清晰、表达明确的建筑实践,都是围绕“纯粹和重复”空间的展现和使用。
“Purity” here is a process of distillation, removing all but the most essential elements, walls, the color white, the intrinsic qualities of materials and space itself. What remains is an undistracted field where space is encountered directly by the body.
这里的“纯粹”指将除了基本建筑元素比如墙、色彩中的白色等以外的装饰性元素简化或去除,关注材料的运用,只留下空间本身,让进入场地的人们能通过身体体验直接对建筑空间产生心理上的感受,避免被干扰而削弱对空间的感知。
“Repetition” here operates quite clearly in religious architecture. Moving through repeated forms, the path is shaped by an underlying order—axis and sequence. Within this directed movement, repetition gives rise to gradual shifts in perception.
“重复”的效用则较为显著地常见于宗教建筑,如果有兴趣可以回观一下前往寺庙时获得的体验。当行走在形式重复的殿宇之间,看似不经意的路线其实已由空间特点所决定,沿轴线排列的布局、层层递进的院落,在营造出深邃空间序列感的同时使人在固定方向的不断绕行中接纳领悟与改变。

open gallery | 公共展厅

open gallery | 公共展厅

open gallery | 公共展厅
Among two spatial strategies that both embody "purity and repetition"—the "centralized enclosure" and the "nine-square grid”, the project ultimately adopts the latter. The former is characterized by a movement that begins at the periphery and progresses inward around a center, creating depth. The latter, by contrast, organizes space by an apparently even distribution, defines how one moves, allowing space to act with movement itself.
在涵盖“纯粹和重复”空间组织方式的两个不同方案类型“围中心”和“九宫格”中,永诺上海展厅项目最终确定了“九宫格”形式,前者以围绕中心从边缘开始进行有深度的递进动作为特点;后者以看似平均的空间分布,定义人的运动方式,通过行进动作使空间对人产生影响。

central hall | 中央展厅

showroom | 展示区
The project is located on the third floor of CIMEN mall. The idea is to weave the past and future of this German brand, founded in 1912, into a coherent spatial construct, while giving it a distinct spatial identity within the mall. Conceived as a small building within a larger one, the showroom is focused on experience and perception, offering the possibility of being moved by a physical space aligned with bodily awareness.
永诺上海展厅位于喜盈门商场三楼。将这一始于1912年的德国品牌的过去和未来融入空间构建中,是建造这座展厅的目的,与此同时,区隔于商场整体的商业氛围,搭建商场内的小建筑,以体验和感受为核心,让人在一个与身体体验一致的建筑中收获由物理空间带来触动的可能。
The journey begins upon arrival at the third floor. Even before entering, colored light emanating from the center of the showroom becomes visible through the showcase that forms the first impression. Within a nine-square grid, where eight quadrants surround a central hall, the sequence unfolds with clarity. Entry is made through an open gallery, followed by a passage through the central hall leading to the product showroom. A second passage returns to the central hall and continues toward the experience area. A third passage leads once more through the center to the meeting room, completing a circuit around the core. Within each zone, circulation follows a clockwise direction. The entire route is precisely composed as part of the architectural design.
这场体验的旅程从来到商场三楼就开始了。进入展厅建筑之前,展厅中心散发出的彩色光芒透过玻璃橱窗给人留下对这里的最初印象。在八个象限围绕一个中心的“九宫格”布局中,参观者由公共展厅进入,经过中厅到达产品展示区,接着第二次经过中厅到达智能体验区,随后第三次经过中厅到达洽谈区——这个过程中完成围绕九宫格中心的绕行,并在每个区域里都有一次顺时针方向的绕行,这也是建筑师对展厅参观路线的精确设计。

showroom | 展示区

showroom | 展示区
The open gallery at the entrance is the first space presents to all visitors. It remains relatively independent, set apart from the central hall by an automatic sliding door. Visitors coming here are drawn to Le Corbusier's colored switch series, meanwhile, the other areas are kept inaccessible.
公共展厅位于入口处,是这座建筑面对所有观众的第一个空间,它相对独立,与中央展厅以一道自动移动门相隔,来到这里的观众被勒·柯布西耶色彩系列开关展示墙所吸引,一开始并不能进入其他区域。
Moving beyond the open gallery, the glass door is activated by an elbow switch and opens gradually, inviting visitors into the central hall—a miniature museum. Here, images unfold across four pieces of walls, showing JUNG’s headquarter in Schalksmühle, Germany. For more than a century, its manufacturing has remained set within the forest. As the founder, Mr. Albrecht Jung, described, every journey back to the factory is a journey home, a return into the forest. Meanwhile, four switch works representing four different historical periods of JUNG are exhibited in the middle vitrines. The exhibits combines with films becomes an immersive experience.
参观完公共展厅,通过触发肘击开关,自动移门缓缓开启,观众被邀请进入中央展厅——一座迷你博物馆。中央展厅内四面白墙上显现出关于永诺德国总部沙克斯缪勒的影像短片,永诺的制造工厂一百多年来置身于森林之中,正如创始人阿布希特·永诺所说,“每次去往工厂就是回到森林里的家”。中厅的中心位置展出四件代表永诺四个不同历史时期的开关作品,展品结合影片营造了360度环绕沉浸体验。

showroom | 展示区

showroom | 展示区
After this brief show, visitors head to the showroom at the east zone, where a guide walks them through the various product lines. Returning to the central hall from a different direction, visitors notice the far door frame has been deliberately narrowed which becomes a quiet control over what comes into view. Another short film begins. A timeline appears across the walls, tracing key moments in JUNG's history. The combination of images and shifting lights recalls a feeling that is familiar, fresh, and authentic.
观赏完这一段小型表演,观众来到东侧产品展示区,在导览员的讲解下获得对各个产品系列全面概要的了解。从这里回到中厅时,面对同样空间但自不同方向进入,视线端头的门框刻意收窄,使视线所及内容受控在有限范围内。此时中厅开始播放另一部短片,白墙上显现的时间轴提示着关于永诺发展进程中的各个历史时刻。短片内容结合变换的灯光带给人熟悉又陌生的感觉。
Following the direction of the timeline, visitors arrive at the experience area in the north zone. With sofas, a fireplace, lights, and audiovisual equipment arranged before them, the atmosphere feels effortlessly chill. In this private space, a tablet allows visitors to control the music and lighting — and in winter, to adjust the intensity of the flames. Above the fireplace, an opening echoes the one in the open gallery. Once again, "daylight" bridges the two spaces, carrying a quiet sense of time.
跟随时间轴指示的方向完成绕行,观众进入北侧的智能体验区。相向放置的沙发、壁炉、灯具以及影音设备,带来舒适、放松的氛围,观众在独享空间的同时可通过平板电脑控制调节音乐、灯光,冬季时还可以调节壁炉内的火焰大小。壁炉上方的顶部有一个与公共展厅内相同的洞口,“日光”传递的时间感受形成再一次的连接。

historical switch works | 历史开关陈列

experience area | 体验区

experience area | 体验区
Leaving the experience area, visitors pass through the central hall one last time. Now the space is filled only with ordinary daylight. Most visitors might simply walk through and out. But for those who have chosen JUNG's customized services, a place for longer, unhurried conversations with staff awaits. Built for extended discussion, the meeting room offers custom furniture and display cabinets. Curtains and doors are woven into the control system, opening when the meeting ends — a quiet ritual, a soft final note that completes the architectural experience.
离开体验区后第三次进入中厅,这里展现的是日常的天光状态。观众可穿过中厅结束浏览离开,或者对于已定制永诺品牌服务的客户来说,便来到洽谈区与工作人员就具体方案进行商谈。作为容纳长时间交流的场所,这里除了展示机柜还有专门设计的家具,电动窗帘和玻璃门接入智能系统,从闭合调至打开状态成为会议结束时附有仪式感的最终展示环节,并带给人关于这座建筑的完整体验。

central hall | 中央展厅

meeting room | 洽谈区

meeting room | 洽谈区
As a "small building" inside a large commercial complex, the showroom features an exposed concrete ceiling and sharply defined walls, both are carried out by technical breakthroughs. The materials and construction methods for the ceiling were developed specifically for this project. A high strength concrete mixed with glass fiber, originally intended for factory prefabrication, was adapted for on-site use and applied through an innovative spray method. While the original process was limited to at most 40 or 50 square meters, the showroom achieved 132 square meters using the adapted method. Details regarding equipment and conduits, including tracks on the ceiling, sprinklers, projectors, and speakers, have been considered and pre-installed as embedded components during the spray application process.
作为大型商业建筑里的小建筑,展厅具有清晰的混凝土顶面和界限分明的墙体结构,这二者也是技术上承担许多突破和创新的部分。顶面采用的材料和施工方法都来自针对项目的单独研发,将原本用于工厂预制件的高强度混凝土混合玻璃纤维的配方,改进后用于展厅现场,并运用喷射的创新方式完成屋顶浇筑。在原有工艺最多生成40至50平方米预制件的情况下,展厅项目对工艺的突破达成了132平方米超大面积的成果。在喷射浇筑的过程中,功能性设备和管道包括顶面上的轨道、喷淋装置、投影仪、音箱等都考虑预埋在内。
The complexity of the wall construction becomes clear when looking at a model in the open gallery. This structure, called HUB, consists of an aluminum alloy frame that holds all the necessary equipment, including suspended LED screens and embedded invisible speakers. The construction is then completed by casting concrete into a non-removable formwork. The wall stands completely free from the ceiling, with a two centimeter gap left between them to function as an air conditioning vent. Such is the details and crafts behind this small building.
墙体的复杂程度可以从公共展厅区域的一件模型展品中窥知一二。这是被称为HUB的墙体结构,中间的铝合金墙体骨架集合所有设备,比如悬挂Led屏幕或者嵌入隐形音箱,再以免拆模板浇筑混凝土完成建造,整个墙体独立于顶面而存在,与顶面之间预留2厘米缝隙作为空调风口。顶面和墙体的高度整合性使小建筑成为可能。

showcase | 橱窗

elevation | 立面
Ideal spatial design is like a simple container that hides a complex system. It feels effortless and fluid, while all the complexity behind has been invisibly resolved. When pure space and concealed details are honed to their utmost so that people experiences the long, stable, and enduring presence of architecture. From entry to exit, the flow of time aligns with the perception of space, much like the window that opens onto the street in the Longshang Books Cafe project, forming a connection between environment and people.
理想的空间设计,就像隐藏了复杂系统的“简洁容器”,它让人感觉自然流畅,而背后的一切复杂性都已被无形解决。当把纯粹空间、隐藏式节点做到极致,身处其中的人们感受到的就是空间所呈现出的长久、稳定的建筑性。从进入到离开,时间的流动与对空间的感知贴合在一起,就像陇上书店项目中面对街道设置的那扇窗的作用一样,构成自然与人的连接。
Time experienced within space, sensation awakened through movement, connections between the showroom and visitors are built.
在空间里体会时间,在行为中获得感受,展厅和人的联系在此展开。

plan | 平面

axonometric丨轴侧

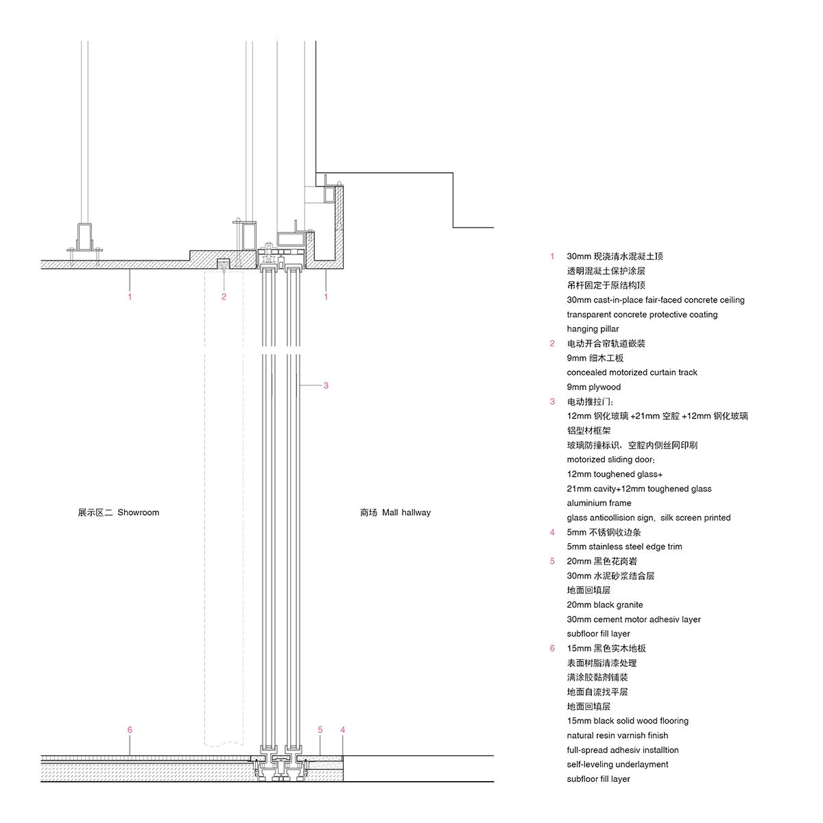
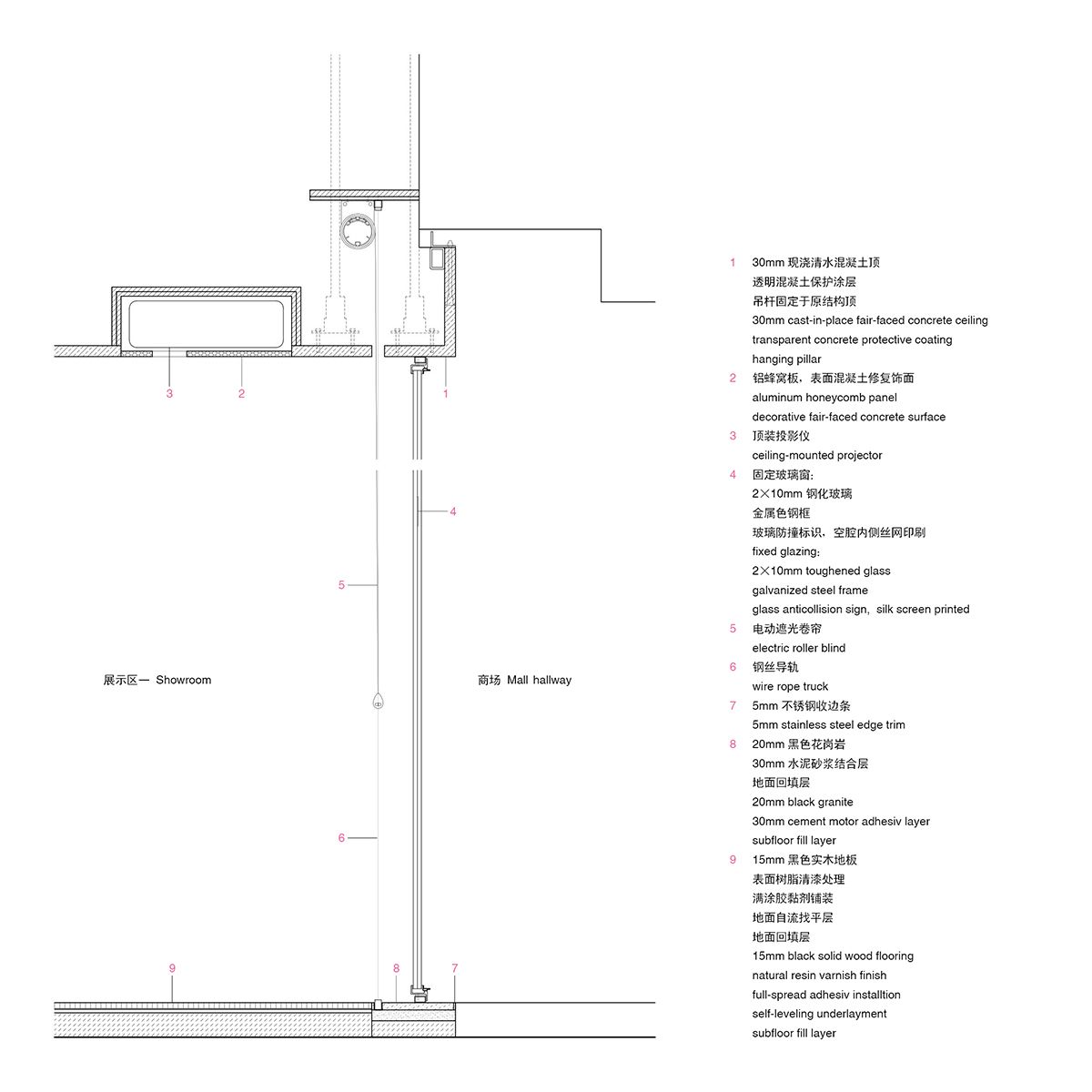
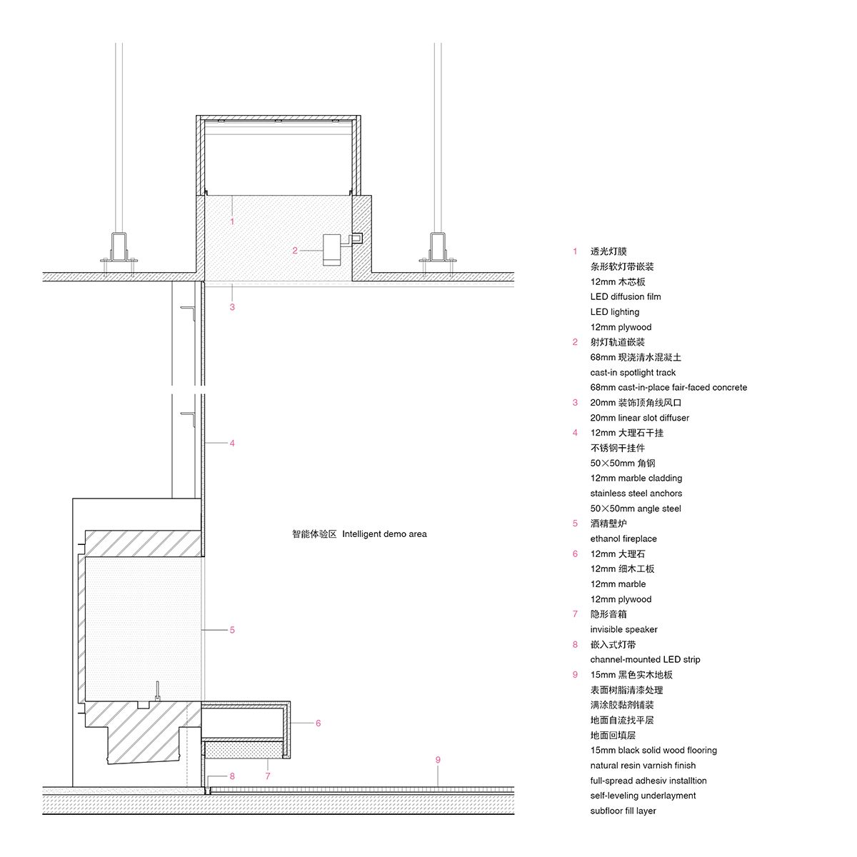
detail|详图

detail|详图

detail|详图

detail|详图

model|模型

model|模型